|

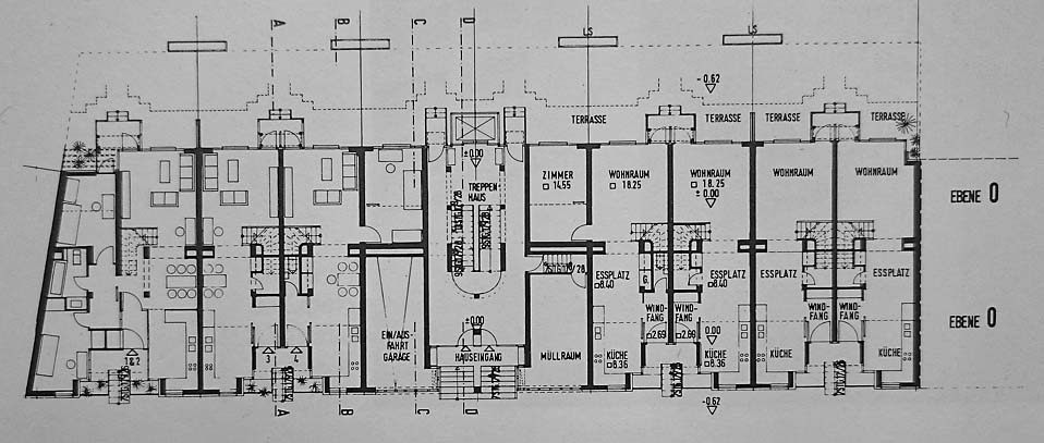
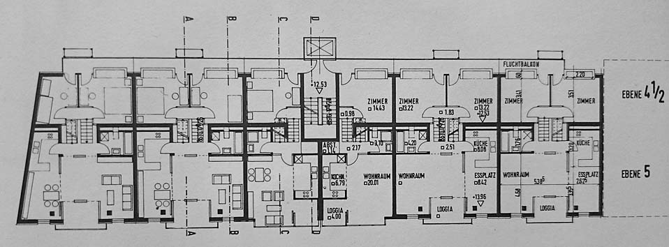
Es folgen Querschnitt und Grundrisse der Etagen des Solarhauses Lützowstr. 3-5 von IBUS-Architekten, damals Hasso Schreck, Gustav Schreck, Joachim Nagel (Bilder und Informationen entnommen aus: Kleihues, Joseph Paul, Hg.; Internationale Bauausstellung Berlin 1984/87, Die Neubaugebiete, Dokumente, Projekte, Heft 7, Stuttgart, 1993, Hatje, S. 268 ff). Das Haus und seine Grundrisse zu studieren, ist besonders interessant, weil es - was in der Architektur selten ist - durch die solare Split-Level- Bauweise wirklich dreidimensional konzipiert ist: die flache Wintersonne soll möglichst tief in die Wohnungen hineinfallen. Es ist eine kleine Herausforderung, die Erschließung über die wohnungsinternen Treppen und von außen über (2) Laubengänge (nach oben und unten) zu 'lesen'.
Die Zusammenlegung der Funktionen (Küche - Essen - Wohnen; Schlafzimmer - Bad - WC) bzw. deren Trennung (Eltern- und Kinderschlafzimmer) sind teilweise ideal gelöst. Allerdings entstehen m.E. unschöne, Platz verschwendende Flur- bzw. Treppenhaussituationen. Der Gedanke, tiefen Sonneneinfall über Split-Level-Bauweise zu realisieren, scheint dort sinnvoller anwendbar zu sein, wo Räume - z.B. Wohnräume - auch über die Treppen bzw. Ebenenränder hinweg offen durchlaufen, sodass der Lichteinfall nicht nur dazu dient, die internen Treppen zu erhellen und ansonsten vielleicht nur bei einer offenen Tür wirksam zu sein...
Außerdem ist das Prinzip der Wärmezonierung (warm im Kern, außen kühler) beispielhaft realisiert (außer da, wo die Konstruktionslogik dazu nötigt, in den wärmsten Bereich des Gebäudes Abstellkammern zu legen...). Man beachte auch die Umkehr der Grundrisslogik im Erdgeschoss, weil hier die sonst nach S ausgerichteten Wohnräume auf die Gärten im N gehen.
Ich erinnere ferner an die solaren Trombewände bzw. die Warmluftkollektoren, die in den kühlen und kalten Jahreszeiten Wärme an die Beton-Hohlröhrendecken abgeben.










Hier geht's zur Bilder-Strecke von der Tour "Berlin - Stadt der Zukunft - S trukturalismus und Ökologie" und hier zurück zu den Energiesparhäusern Lützowufer 1-5 und den anderen Links.
|